產品簡介:
HPMV-YTG系列中高壓固態軟起動裝置是基于第三代數字微處理器控制技術和現代電力電子控制技術而設計的新型高科技電氣設備,是為中高壓大型電機提供軟起動的專用設備,可為電機提供優化的降壓限流式軟起動方式。為適應不同的負載條件,達到更好的起動效果,HPMV-YTG設計了多種控制功能,從而能以起動電機所需的最小電流來平穩加速起動,因此有效的降低起動時的電網壓降,減弱起動時的電流沖擊和機械沖擊;在需要軟停時,能向電機提供平緩漸減的可控電壓,將電機傳動系統平穩停車。
產品特點:
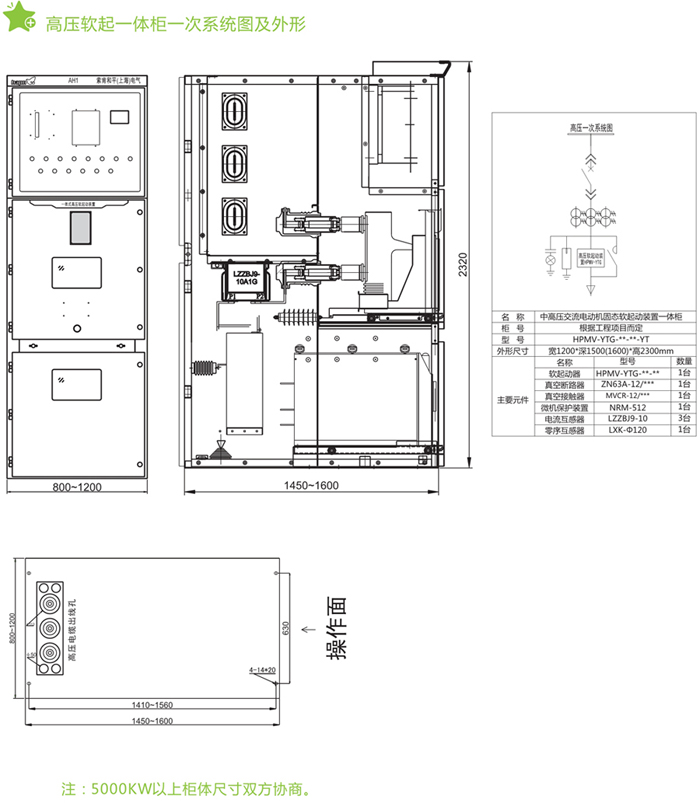
◆ 整體裝置由手車式真空斷路器、HPMV-YTG軟起動器、高壓旁路真空接觸器組成;
◆ 柜體采用2mm敷鋁鋅鋼板,經CNC數控設備加工,用高強度螺栓聯接而成。整體防護等級為IP4x ; ◆ 柜體分為四個獨立的功能單元隔室,依次為手車斷路器室、高壓母線室、高壓電纜室、高壓軟起動器室。
◆ 將高壓開關、軟起柜和旁路運行柜合成一體柜設計,具有體積小,節約配電室空間,同等功率下體
◆ 積為其它方式軟起動器的30%- 50%。,與其它設備可以完美組合并柜安裝。
◆ 特別適用于現場位置有限及同類廠家起動類產品的技術改造和替代。( 開關柜分體式設計也可選).
規格:
默認值:220VAC










